O Condomínio Náutico Riviera do Lago é um empreendimento exclusivo, situado à beira de uma deslumbrante represa, oferecendo uma combinação perfeita de natureza, conforto e sofisticação, ideal para quem busca privacidade, conforto e qualidade para você e sua família.
Apesar da privacidade do condomínio, o acesso é facilitado entre os municípios de Bom Sucesso, Ijaci e Lavras.
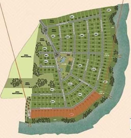
-Lotes a partir de 801m²
-Portaria 24horas
-Infraestrutura completa
-Área de lazer: Playground, Piscina, Quadra Poliesportiva, Quadra de areia, Quadra de tênis.
Investimento: A partir de R$272.000,00
Telefone: (35) 9 9263-0900
Lance Imob | Todos os lançamentos em uma imobiliária. Quem compara vai de Lance.
*Preço sujeito a alterações consulte condições
CRECI PJ 6102
Conectamos pessoas e imóveis de maneira humanizada.
Especificações
801,00 m² de Terreno
Comodidades
Piscina
Quadraesportiva
Portaria 24 Horas
Localização
ENTRAMOS EM CONTATO
Compartilhe este Imóvel
Ligue Agora
Endereço
Av. Dra. Damina Zákia - Centro, Lavras - MG, 37200-164